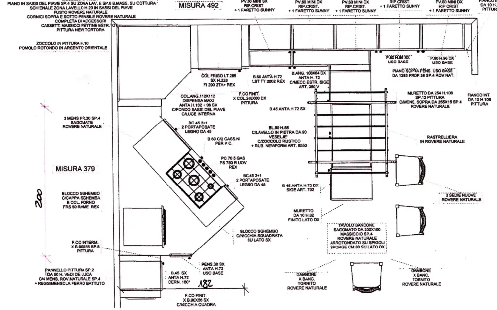
Cucina di mostra, unico pezzo, modello Carola ditta Arrex Le Cucine.
Le scocche sono in rovere naturale ed i frontali in rovere naturale spazzolato.
Il piano di lavoro è formato da elementi naturali, ovvero in sassi del Piave ed è di sp. 4 cm.
Tutte le cornici sono in rovere natuale e lo zoccolo è di H10 cm in pittura color New Tortora.
Le maniglie hanno un pomello ovale bianco e spazzolato.
I pensili hanno le ante in vetro ed i ripiani interni sono in cristallo; inseriti all’interno anche i faretti.
Nell’angolo è presente una colonna dispensa da 112×112 cm h228 cm con fondo in sassi del piave + luce interna.
Tutte le ante, cassetti e cestoni hanno la chiusura rallentata grazie a cerniere ammortizzate.
Compreso tavolo/bancone sagomato 200×200 cm massiccio sp.4 cm in rovere naturale arrotondato sugli spigoli con gamboni torniti + 3 sedie in rovere naturale.
La base ad angolo ha cesti estraibili come in foto.
Elettrodomestici inclusi:
– frigo ad incasso Electrolux
– lavastoviglie 13 coperti ad incasso Electrolux
– Lavello Giallo d’Istria 90×69 vecchio Veneto
– Miscelatore Newform art. 8550 spazzolato
– Cappa ad incasso con frontale massiccio camino obliquo, ditta Faber
– Forno multifunzione color rame Electrolux
– Piano cottura da 75 a gas color sabbia con maniglie bronzo Electrolux
Siamo disponibili per trasporto e montaggio con prezzo da calcolare.
Possibilità di finanziamento.
- Marca: Cucine Arrex
- Modello:Carola muratura
- Materiale: legno
- Stile: country
- Colore: rovere chiaro
- Disposizione: ad angolo
- Spese Trasporto: trasporto escluso
- Cucine Padova
- Outlet arredamento Padova
- Arrex Padova
PF Arredamenti
Via Este, 2a
35040 Masi
- Dettagli:
- Piano Cottura: a gas 75 a gas color sabbia con maniglie bronzo Electrolux
- Forno: multifunzione multifunzione color rame Electrolux
- Forno microonde: nessun microonde
- Frigorifero: ad Incasso
- Lavastoviglie: comandi a scomparsa 13 coperti ad incasso Electrolux
- Cappa: a incasso con frontale massiccio camino obliquo ditta Faber
- Lavello: marmo Giallo d’Istria 90×69 vecchio Veneto
- Rubinetteria: miscelatore Newform art. 8550 spazzolato
- Top cucina: marmo Sassi del Piave
Prezzo scontato 62% per la cucina Arrex Carola muratura
Se vorrai approfittare di quest’offerta molto vantaggiosa, riceverai tutta l’eccellenza che il brand Arrex assicura per le sue composizioni risparmiando 24700 Euro. Potrai sentirti a tuo agio ogni giorno nella Cucina Carola muratura Rovere chiaro Ad angolo, poiché è pensata per rispondere alle richieste ed ai gusti personali.
Ad angolo, Legno Rovere chiaro: la tua cucina ideale a soli 15000 Euro
La cucina Carola muratura rovere chiaro Arrex, ora scontata, è ideale per interni domestici di ogni stile e dimensione. Se desideri ricreare peculiari atmosfere country nella tua cucina, scegli Carola muratura qui scontata, ti garantiamo la totale soddisfazione a progetto ultimato. Le nostre composizioni, tra cui la cucina Carola muratura, sono sempre realizzate con finiture innovative garantiti, dunque anche con legno in uno o più colori. La cucina ad angolo Carola muratura esaudirà ogni tua esigenza, adattandosi alla perfezione a locali di diverse conformazioni e dimensioni.
- Materiali: legno
- Stile: country
- Colore: rovere chiaro
- Disposizione: ad angolo
- Spese Trasporto: trasporto escluso





































Reviews
There are no reviews yet.